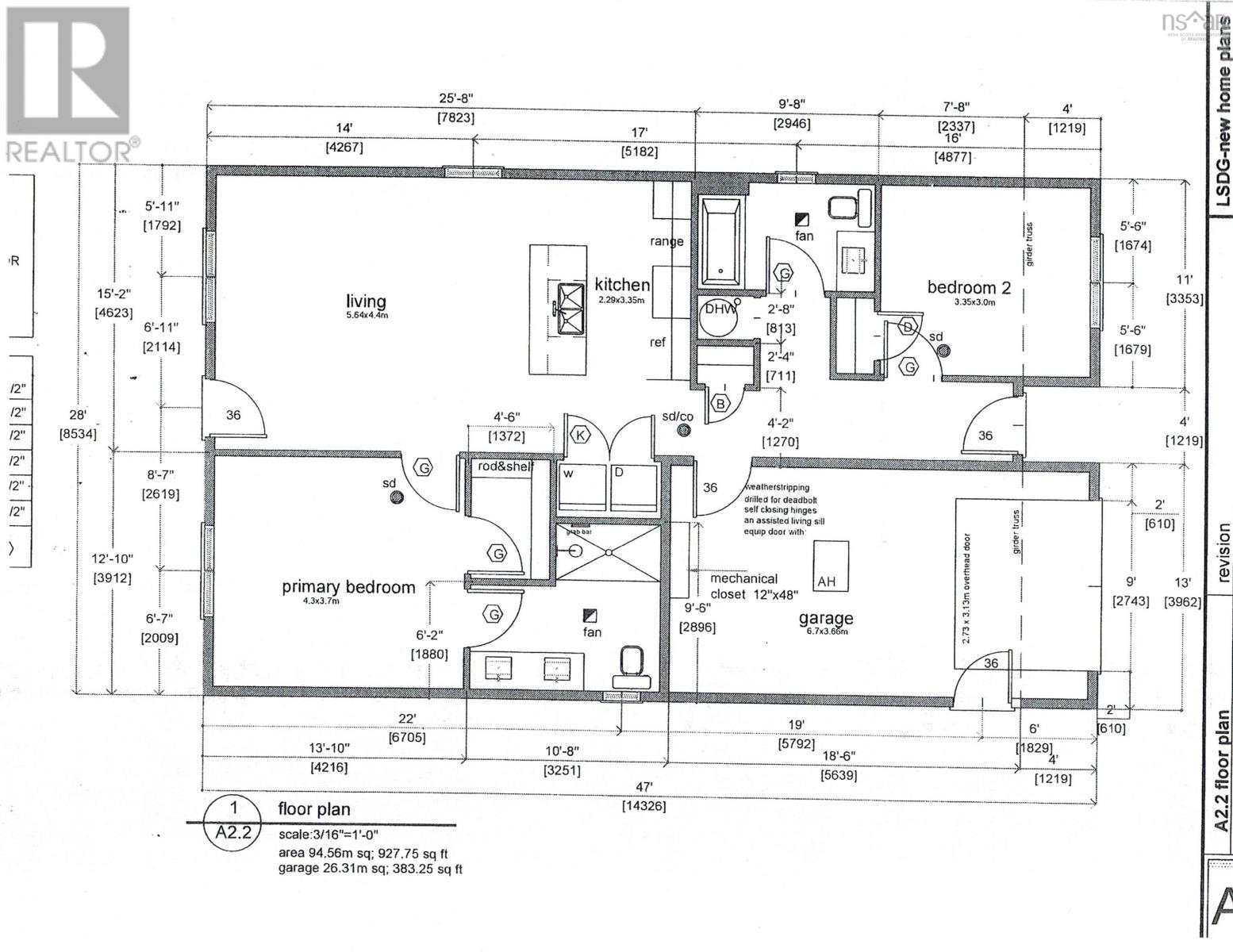
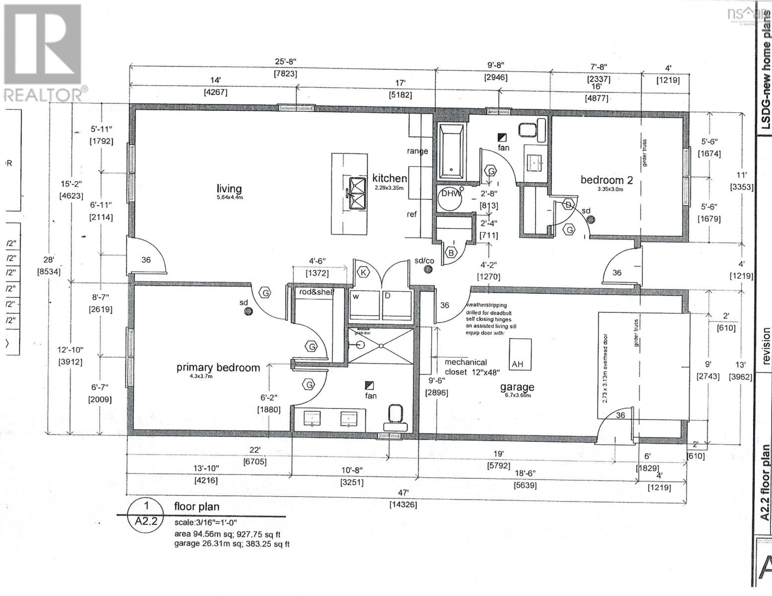
Here we are... Affordable New Home. ONLY $378,800. All finished and easy viewings. FIVE New Appliances just delivered. Driveway Paved. Another excellent quality home in Stewiacke River Crossing, just off exit 11 Stewiacke. Two bedroom , Two bath bungalow with infloor heat including the garage. 9 foot cielings, Heat pump, Quartz Countertops, Quality home. Municipal services. Slab on foundation. NOTE: meaasurements are from plans . Contact your Realtor and book a viewing! These homes are in the new development just off exit 11 near the new Foodland. Easy commuting to Airport, Burnside, Bedford or city. Other homes available also. Immediate possession. (id:4069)
Address
27 Perry Crescent
List Price
$378,800
Property Type
Single Family
Type of Dwelling
Single Family
Style of Home
Bungalow
Transaction Type
Sale
Area
Nova Scotia
Sub-Area
Stewiacke
Bedrooms
2
Bathrooms
2
Floor Area
928 Sq. Ft.
Lot Size
0.1644 Sq. Ft.
MLS® Number
202517763
Listing Brokerage
BORDEN REAL ESTATE LIMITED - A586
Basement Area
None
Postal Code
B0N2J0
Site Influences
Golf Course, Park, Place of Worship
Features
Wheelchair access, Level






































