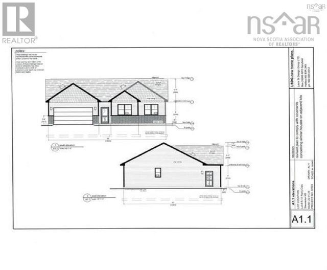
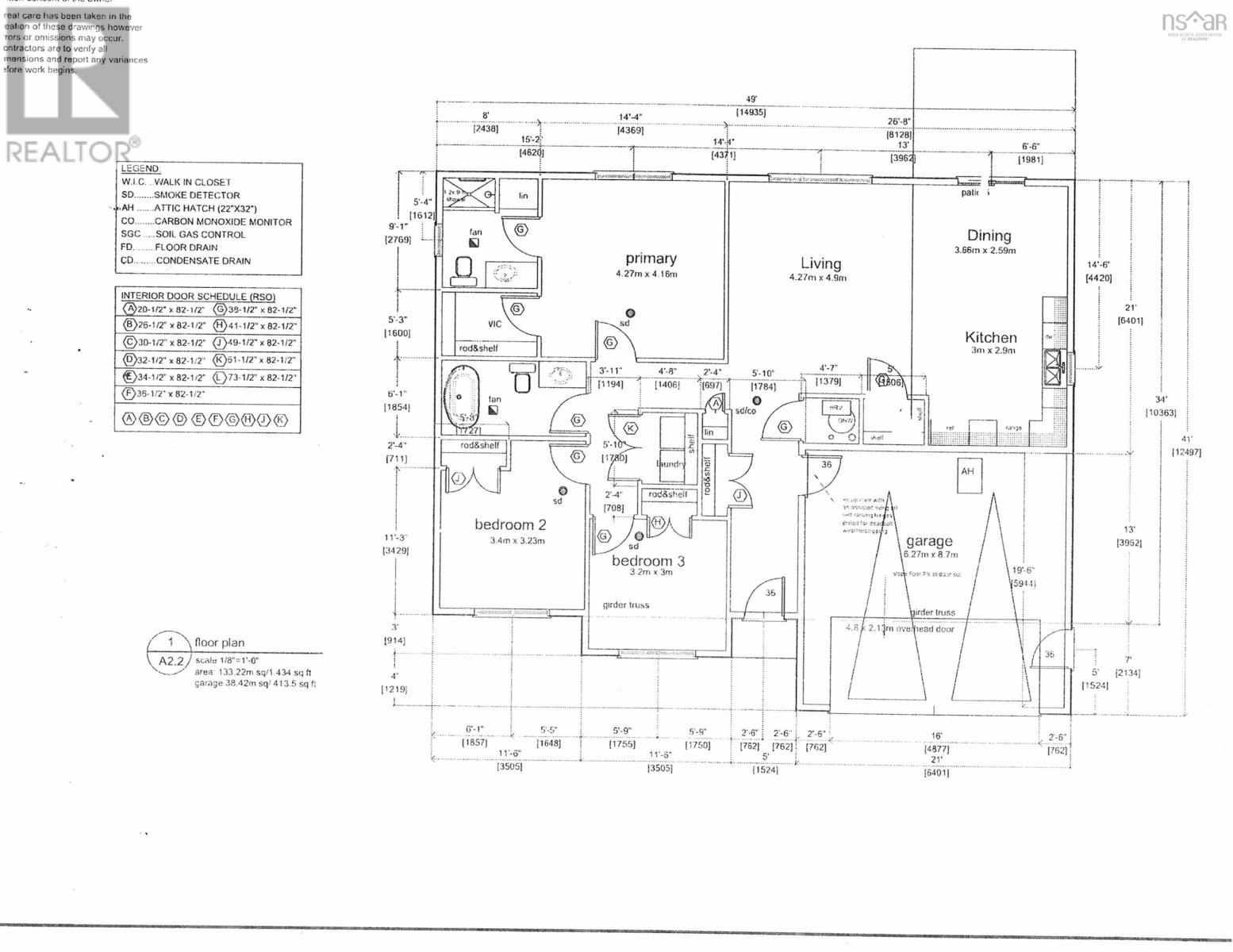
Another New Home to be built in Stewiacke River Crossing . Wheelchair friendly home with infloor heat including double garage. 9 foot cielings. Quartz counter tops. Heat Pump. NOTE: room sizes are from plans. NOTE: Pantry on plans is mechanical room. Home will be landsacped by builder. This home is over 1400 sq ft. Photos are from previous home by same builder. Price is including HST with rebate assigned to builder. Any offer must have written confirmation of financing ability attached. Home covered by Lux Warranty. Home is is scheduled for completion February 2026. Will be Move in Ready!. Have a look around this fine development just off exit 11, Stewiacke, HWY 102. You will definatly be impressed. (id:4069)
Address
25 Ridge
List Price
$499,900
Property Type
Single Family
Type of Dwelling
Single Family
Style of Home
Bungalow
Transaction Type
Sale
Area
Nova Scotia
Sub-Area
Stewiacke
Bedrooms
3
Bathrooms
2
Floor Area
1,424 Sq. Ft.
Lot Size
0.1826 Sq. Ft.
MLS® Number
202519356
Listing Brokerage
BORDEN REAL ESTATE LIMITED - A586
Basement Area
None
Postal Code
B0N2J0
Site Influences
Golf Course, Park, Place of Worship
Features
Sloping, Wheelchair access, Level





